施設紹介
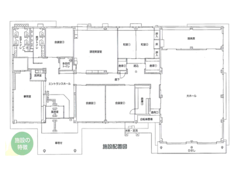
高松コミュニティセンター施設マップ
〔マップをダウンロードする〕

施設紹介
 |
〔高松コミュニティセンター〕
・平成30(2018)年3月25日完工
・敷地面積/4,092.09㎡
・建物延床面積/998.01㎡
|
 |
〔大ホール〕
・イス席で約200名収容可能
・スクリーン、音響装置あり
※音響装置は事務所開館時間のみ使用可能
但し簡易的な音響機器あり(マイク、CDの使用可能)
・段差のない掃きだし窓外から、荷物の運搬可能
<使用例>
総会、講演会、コンサート、軽スポーツなど
|
 |
〔和室1・2〕
・1室12畳
・左図のようにふすまをはずして、ひとつの広間としての利用も可能(最大30名程度収容可能)
・テーブル、座イスあり
<使用例>
番茶会、調理実習後の会食など
|
 |
〔調理実習室〕
・調理台5/ガステーブル5
・ガスオーブン2/教示鏡1
・冷蔵庫、冷凍庫、電子レンジ等あり
<使用例>
そば打ち、パンづくりなど
|
 |
〔会議室1〕
・20名程度収容可能
・テーブル、イスあり
<使用例>
会議、各サークル活動など
|
 |
〔会議室2〕
・テレビ、DVDプレーヤーあり
・会議室1との仕切りをはずせば、大会議室として約40名収容可能
<使用例>
会議、各サークル活動など
|
開館時間
■事務室(窓口)
8時30分から17時まで(平日のみ)
■貸館可能時間
9時から22時まで(要予約)
※17時から22時までと、土・日・祝日は貸館対応となります
施設利用について
■地区内外どなたでもご利用できます
※営利目的・政治・宗教活動を目的とする個人・団体はお断りいたします
貸館について
1.窓口または電話にて、利用したい部屋の空き状況を確認
2.高松コミュニティセンターへ来館し「使用承認申請書」を記入して提出
3.利用後、報告書を記入して提出
〔無料使用の場合〕
使用承認申請書ダウンロード

※有料使用の場合は使用承認申請書の形式が異なります⇒コミセン窓口でお渡ししますのでご来館ください
■夜間(17時から22時まで)、土・日・祝日は職員不在のため、使用日前の平日に来館いただき、通用口の鍵をお受け取りください
■貸館利用後は、通用口の施錠をお願いいたします
使用料
■使用料が発生する場合
(1)出雲市外在住者が使用する場合
(2)個人や私的なグループ・事業所などの限られた目的のために使用する場合
部屋名 |
使用料
(1時間あたり) |
冷暖房使用時
(使用料の3割加算) |
大ホール |
2540円 |
3302円 |
和室 |
500円 |
650円 |
実習室 |
1010円 |
1313円 |
会議室 |
500円 |
650円 |
※1時間未満の端数が生じた場合は1時間利用したものとします
■使用料の納付方法
窓口に使用承認申請書を提出される際、納入通知書をお渡しします
使用日の前日までに、指定の金融機関(納入通知書に記載)で使用料を納付してください
その後、コミュニティセンター窓口に領収証をお持ちください