神門のマーク


コミセンの写真

神門コミュニティセンター施設紹介

敷地面積  2,019㎡
建物面積  本館(鉄筋平屋建)709.51㎡
        倉庫32㎡
        自転車置場28㎡
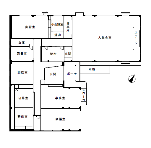
本館内容

 大集会室 217.35㎡  事務室  59.83㎡ 
 小集会室  14.21㎡  談話室  36.00㎡
 研修室①(和室)  36.00㎡  実習室  63.05㎡
研修室②(和室)  36.00㎡  その他  126.74㎡
 図書室  24.00㎡    ㎡
 玄関  36.00㎡  計 709.51㎡ 
平面図

 

MENU

ホーム
地域の概要・人口推移
センターの概要・沿革
施設紹介
自主企画事業紹介
よりみち

出雲市HPへ

出雲市知井宮町801-1
電  話(0853)21-1038
ファクス(0853)21-1056

E-mail:
 kando-cc@local.city.

   izumo.shimane.jp



Copyright(C)